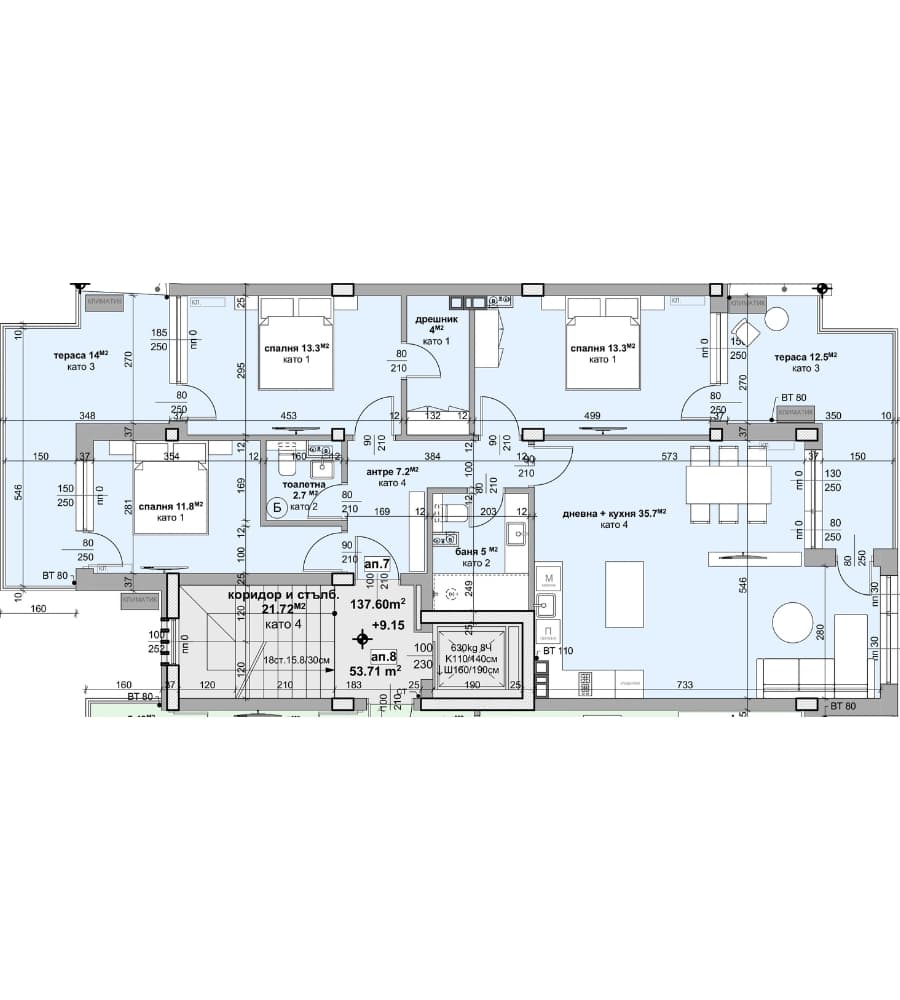
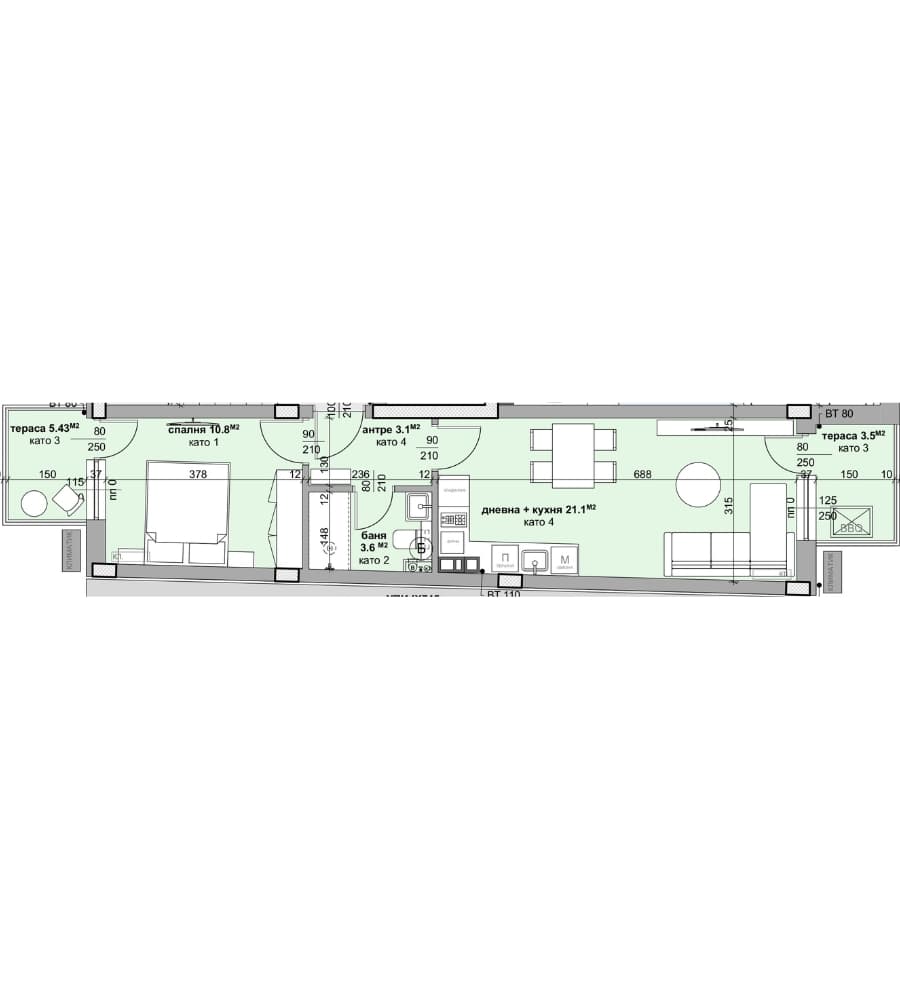
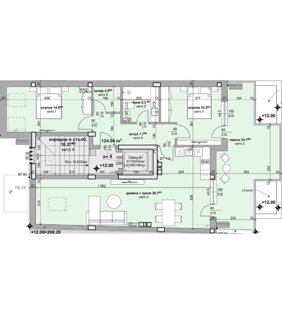
Цъкнете върху етаж за да видите обектите и разположенията
Text
Основни характеристики
- Паркинг - външен
- Домофон
- Контролиран достъп
- Асансьор
- Модерен дизайн
Галерия




Апартаменти
Търговски обекти
Свободни обекти
Паркови места
Етажи
РЗП
Местоположение
Стара Загора, ул. Ангел Кънчев 93
Близки дестинцации
- Ресторант "Антъни"
- Kaufland
- Парк „Св. Игнатий Старозагорски“
- 9-то основно училище "Веселин Ханчев"
- Lidl
- Парк "Бедечка"






